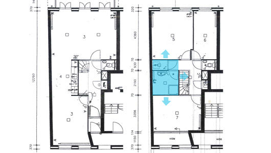
Opdracht particuliere verbouwing|Commission for refurbishment
Augustus 2010. Als gevolg van mond-tot-mondreclame verkrijgt LEGU de opdracht voor een verbouwing van een particulier woonhuis in Amsterdam.
August 2010. Word of mouth results in the commission of LEGU by a private family to refurbish their apartment in Amsterdam.
