Lezing over Oude Raadhuis|Lecture on Oude Raadhuis project
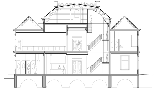
Februari 2009: Johanna Gunther houdt een lezing over het door lehner gunther gerealiseerde cultuurcentrum Het Oude Raadhuis in Hoofddorp. De voordracht op de Hogeschool van Amsterdam documenteert het complete proces van het project, van de eerste schetsen tot de realisatie van dit project in een Rijksmonument.
February 2009. Johanna Gunther lectures about the cultural centre Het Oude Raadhuis in Hoofddorp realized by lehner gunther. The lecture at the Amsterdam University of Applied Science documents the entire process of the project, starting with the first sketches until the realization of this conversion of a listed monument.
